天圣达科创中心精装写字楼招商
 

    项目介绍
    天圣达科创中心位于滨湖区蠡太路118号, 总建筑面积三万多平米。建筑风格新颖,两栋塔楼采用立体线条勾勒出超现实主义空间,辅以中式园林景观,营造出人与自然和谐共生的艺术氛围;内部空间铺设高端石材,彰显简约大气。项目以信息技术、物联网、人工智能、大数据等产业为目标,以国家级科技企业孵化器的孵化服务体系为依托,打造成海内外高层次人才创新创业高地。
   
    产品形态
    【产品面积】60㎡-2500㎡,灵活空间自由组合(可分割),满足不同企业办公面积需求。
    【楼层层高】1楼层高6.5M;2-3楼层高4.5M;5-11楼层高3.6M。
    【交付标准】架空地板,精装吊顶,独立空调,根据企业需求空间定制。
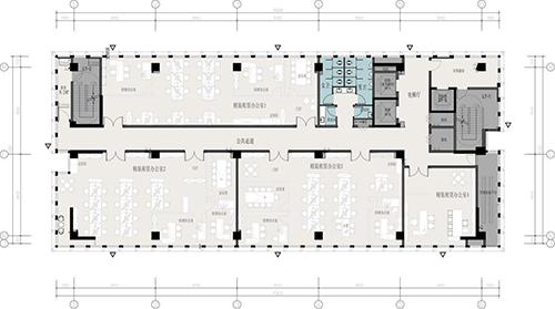
    【一楼平面图】
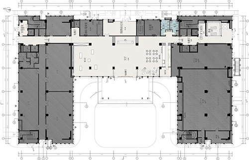
    【标准层布局图】
    实景图片
    【园区外观】
    
    
    现盛大招商,欢迎前来咨询,对成功引进企业的中介机构、社会渠道给予丰厚佣金。
    地址:滨湖区蠡太路118号A座5楼招商中心(美湖家园A区正对面,开车至美湖路向东左手边)
    招商热线:0510-88787888或王经理18914135009(微信同号)
    



 
 
 
 
 
版权所有:江苏天圣达集团有限公司  技术支持:江苏天圣达信息技术有限公司 苏ICP备09008636号
Copyright @ 2006-2007 JSTSD Corporation, All Rights Reserved